Vielseitiges Gewerbeobjekt in Dortmund-Eving: 3 Hallen und moderne Büroflächen.
Immobilientyp Halle
Baujahr 1960
Letzte Modernisierung / Sanierung 2000
Nebenkosten 400 €
Kaution 2000
Kaltmiete 1.000 €
Objektzustand Renovierungsbedürftig
Qualität der Ausstattung Einfach

Vielseitiges Gewerbeobjekt mit 3 Hallen und Büroflächen in Dortmund-Eving – Ideal für individuelle Nutzungskonzepte

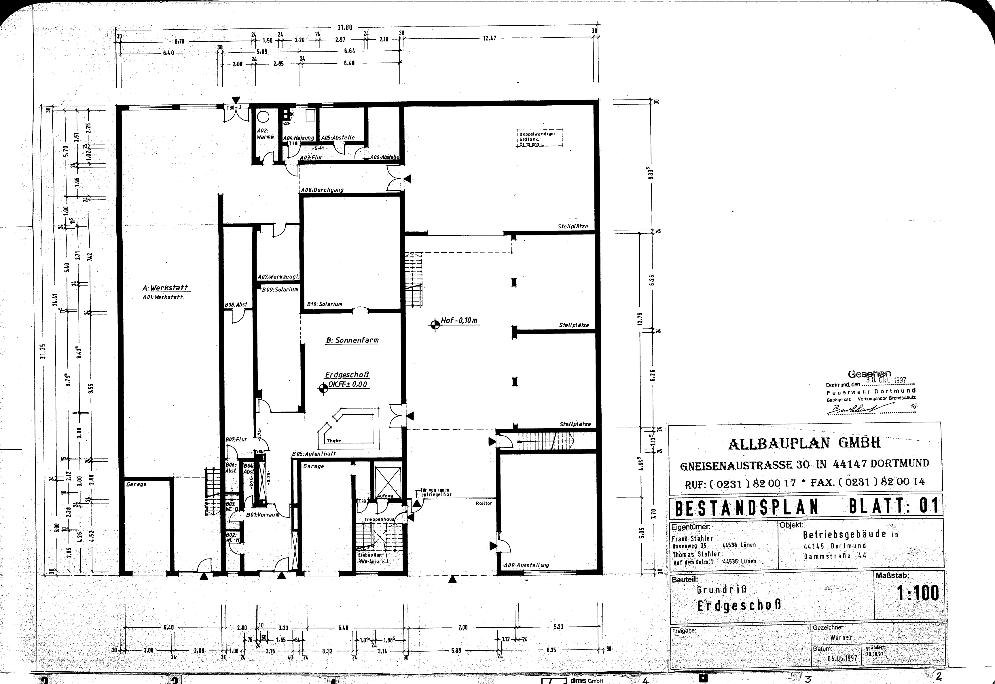
In verkehrsgünstiger Lage von Dortmund-Eving befindet sich dieses großzügige Gewerbeobjekt in der Dammstraße. Die Immobilie umfasst drei separate, nebeneinanderliegende Hallen, die sowohl einzeln als auch gemeinsam genutzt oder vermietet werden können.

Das Objekt befindet sich derzeit im Rohbauzustand und bietet damit hervorragende Möglichkeiten für individuelle Ausbau- und Nutzungskonzepte. Es eignet sich ideal für Handwerksbetriebe, Lager, Dienstleistungen, Produktion, Büro- oder Ausstellungsflächen sowie soziale oder kulturelle Einrichtungen.

Objektdetails:

– Drei separat zugängliche Gewerbehallen
– Gesamtfläche ca. 450,00 m² (je Halle ca. 100 – 200 m²)
– Ausbau- und Umbaumaßnahmen nach Absprache möglich
– Großzügige Büro- und Sozialräume: Aufenthaltsräume, Versammlungsraum, Sitzungsraum, Garderoben, WC-Anlagen, Lager- und Abstellräume
– Stellplätze sind im Außenbereich möglich
– Separate Eingänge für jede Einheit
– Flexibel teilbar oder kombinierbar

Zustand:
Derzeit im Rohbau – ideal für individuelle Ausbauwünsche. Eine Anpassung an spezifische Anforderungen (z. B. Büroausbau, Gewerbeküche, Lagerstruktur) ist in Abstimmung möglich.

Verfügbarkeit:
Ab sofort oder nach Vereinbarung

Besichtigung:
Gerne stellen wir Ihnen weiterführende Unterlagen zur Verfügung oder vereinbaren einen Termin zur persönlichen Besichtigung.

Gesamtfläche ca. 450 m²
Lager- / Produktionsfläche ca. 100 m²
Hallen- / Geschosshöhe 5 m
Bodenbelag: Fliesen

Vielfältige Nutzungsmöglichkeiten für Ihr Gewerbe



Entdecken Sie die zahlreichen Nutzungsmöglichkeiten dieser attraktiven Immobilie, die sich ideal für verschiedene Geschäftskonzepte eignet. Die flexible Raumgestaltung und die optimale Lage bieten Ihnen zahlreiche Optionen, um Ihre unternehmerischen Visionen zu verwirklichen:



– Handwerk / Produktion: Nutzen Sie die großzügigen Flächen für handwerkliche Tätigkeiten oder Produktionsprozesse, die Raum für Kreativität und effizientes Arbeiten bieten.



– Lagerlogistik: Profitieren Sie von den hervorragenden Logistikmöglichkeiten für die Lagerung und den Versand Ihrer Waren. Die zentrale Lage sorgt für eine unkomplizierte Anbindung an Verkehrswege.



– Ausstellung / Handel: Setzen Sie Ihre Produkte gekonnt in Szene und schaffen Sie eine ansprechende Ausstellung, die Ihre Kunden begeistert und zum Kauf anregt.



– Soziale Einrichtungen / Vereine: Gestalten Sie Räume für soziale Projekte oder Vereinsaktivitäten, die Platz für Gemeinschaft und Zusammenhalt bieten.



– Kreativ- oder Büronutzung: Ideal für kreative Köpfe oder Büros, die ein inspirierendes Umfeld suchen. Die hellen und offenen Räume fördern die Produktivität und Kreativität.



– Versandhandel: Nutzen Sie die Immobilie als Basis für Ihren Versandhandel und profitieren Sie von der optimalen Erreichbarkeit für Ihre Kunden.



– Fliesen- und Baustoffhandel, Bodenbelag: Setzen Sie auf den Verkauf von Baustoffen oder Bodenbelägen – die Immobilie bietet ausreichend Platz für Ihre Produkte und eine attraktive Präsentation.



– Verkauf von Sanitäranlagen: Bieten Sie eine umfangreiche Auswahl an Sanitäranlagen in einem ansprechenden Verkaufsraum, der Ihre Kunden überzeugt.



– Büro mit Halle: Kombinieren Sie Büroarbeitsplätze mit einer angrenzenden Halle für Lager oder Produktion – ideale Voraussetzungen für ein effizientes Arbeiten.



Nutzen Sie die vielseitigen Möglichkeiten dieser Immobilie, um Ihr Geschäft erfolgreich zu gestalten. Die flexiblen Räume und die hervorragende Lage bieten Ihnen die Voraussetzungen, um Ihre Ziele zu erreichen und Ihr Unternehmen weiterzuentwickeln. Lassen Sie Ihrer Kreativität freien Lauf und gestalten Sie Ihre Zukunft in dieser einzigartigen Immobilie!

Energieausweis Dieses Gebäude unterliegt nicht den Anforderungen der EnEV

Lage:

Diese ansprechende Immobilie befindet sich in einem etablierten Gewerbegebiet in Dortmund-Eving, das sich durch eine hervorragende Anbindung und strategische Lage auszeichnet. Die unmittelbare Nähe zu den Bundesstraßen B54 und B236 sowie zu den Autobahnen A2 und A45 garantiert eine schnelle und unkomplizierte Erreichbarkeit für sowohl Kunden als auch Mitarbeiter. Darüber hinaus ist der öffentliche Nahverkehr in wenigen Gehminuten erreichbar, was die Standortattraktivität zusätzlich unterstreicht.

Dammstraße 43, 44145 Dortmund

Herr Mustafa Kocak